
タイプ |
Tr TYPE |
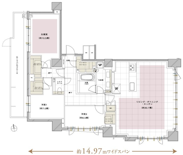
間取り |
3LDK+3WIC+SIC |
---|---|---|---|
専有面積 |
126.24 ㎡ |
バルコニー面積 |
- |
所在地 |
東京都杉並区永福2丁目411-1(地名地番) |
||
交通 |
京王井の頭線「永福町」駅 6分~7分 |
||
備考 |
ルーフバルコニーA面積::18.44㎡ |