

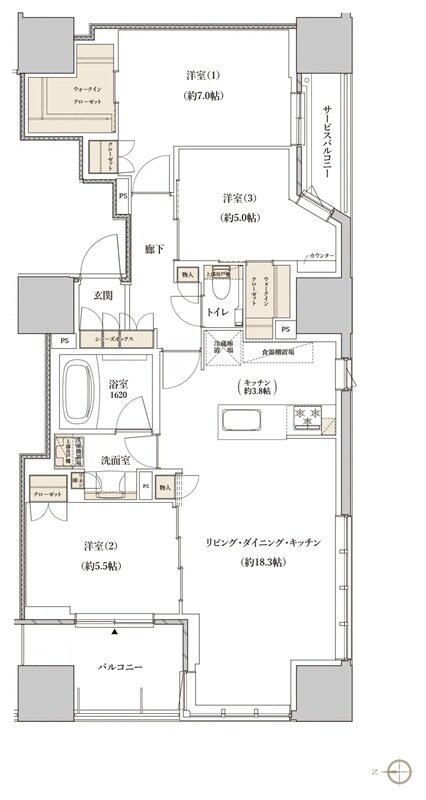
| タイプ |
S-83Fタイプ |
間取り |
3LDK+2WIC |
|---|---|---|---|
| 専有面積 |
83.84 ㎡ |
バルコニー面積 |
7.00 ㎡ |
| 所在地 |
大阪府大阪市福島区福島7丁目12番5他(地番) |
||
| 交通 |
JR東海道本線「大阪」駅 徒歩10分(西口) |
||
| 備考 |
サービスバルコニー面積:3.88㎡ |
||