
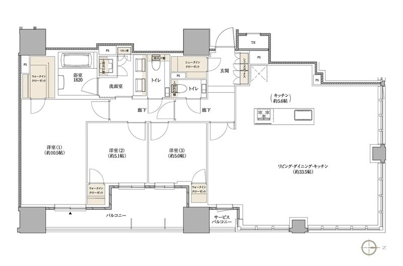
タイプ |
P-122Rタイプ |
間取り |
3LDK+3WIC+SIC+TR |
---|---|---|---|
専有面積 |
122.34 ㎡ |
バルコニー面積 |
11.40 ㎡ |
所在地 |
大阪府大阪市福島区福島7丁目12番5他(地番) |
||
交通 |
JR東海道本線「大阪」駅 徒歩10分(西口) |
||
備考 |
トランクルーム面積:1.06㎡ ※専有面積に含む |