
タイプ |
N type |
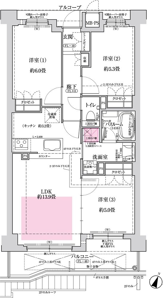
間取り |
3LDK |
---|---|---|---|
専有面積 |
65.25 ㎡ |
バルコニー面積 |
8.80 ㎡ |
所在地 |
兵庫県神戸市東灘区住吉宮町6丁目87番(登記簿) |
||
交通 |
JR東海道本線「住吉」駅 徒歩6分(神戸線) |
||
備考 |
アルコーブ面積:3.46㎡ |