アットホーム 新築マンション

印刷する

このウィンドウを閉じる

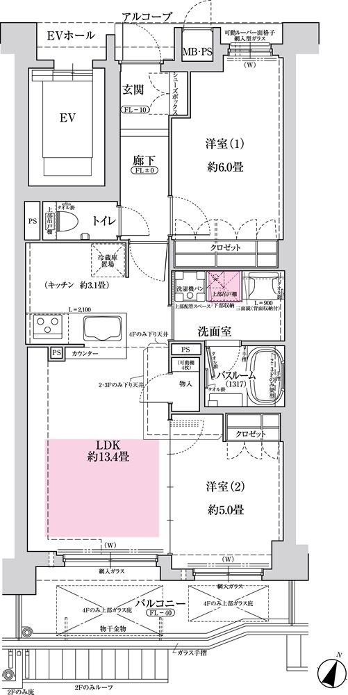
ワコーレ住吉グランフィールズ K type

ワコーレ住吉グランフィールズ 間取り K type
タイプ

K type

間取り

2LDK

専有面積

57.29 ㎡

バルコニー面積

8.63 ㎡

所在地

兵庫県神戸市東灘区住吉宮町6丁目87番(登記簿)
兵庫県神戸市東灘区住吉宮町6丁目15番以下未定(住居表示実施地区)(所在地)

交通

JR東海道本線「住吉」駅 徒歩6分(神戸線)
阪神本線「御影」駅 徒歩6分

備考

アルコーブ面積:2.18㎡
MB・PS面積:0.56㎡

  • アルコーブ
  • 可変式間仕切り
  • 南向き

印刷する

このウィンドウを閉じる

アットホーム Copyright(c) At Home Co.,Ltd. このサイトに掲載している情報の無断転載を禁止します。著作権はアットホーム(株)またはその情報提供者に帰属します。