

| タイプ |
D type |
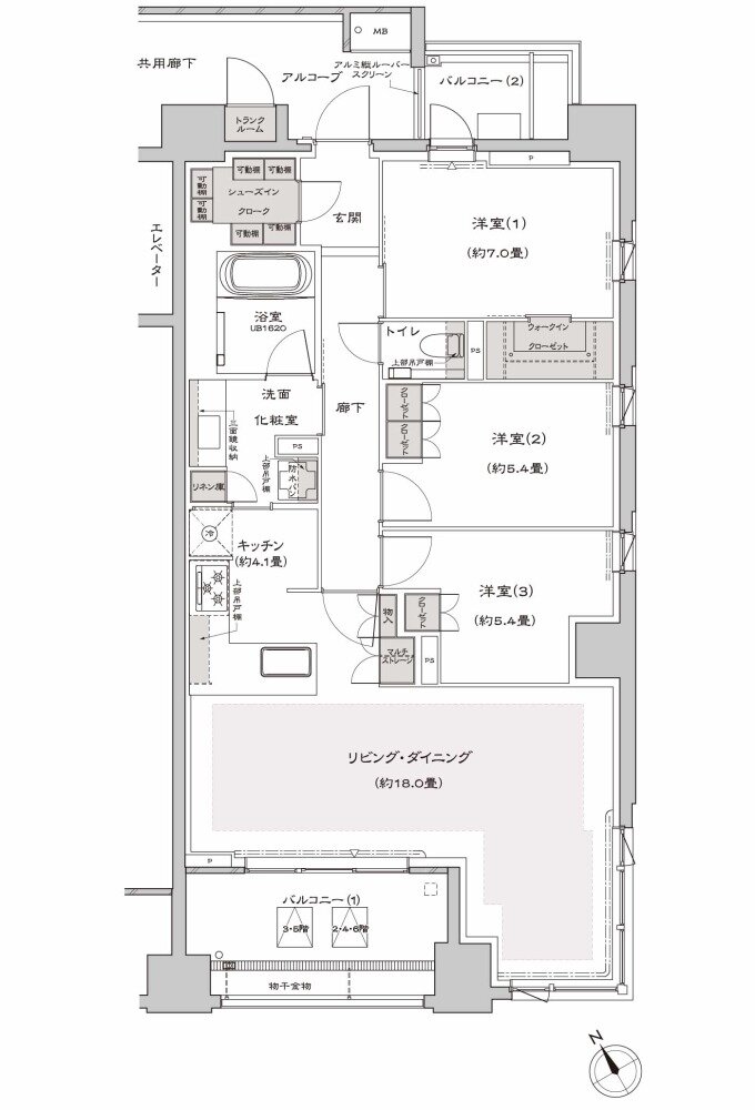
間取り |
3LDK+WIC+SIC+TR |
|---|---|---|---|
| 専有面積 |
92.1 ㎡ |
バルコニー面積 |
- |
| 所在地 |
愛知県名古屋市瑞穂区彌富町字清水ケ岡38番1(地番) |
||
| 交通 |
名古屋市名城線「総合リハビリセンター」駅 徒歩3分 |
||
| 備考 |
専有トランクルーム面積:0.67㎡ |
||