
タイプ |
P-Nr type |
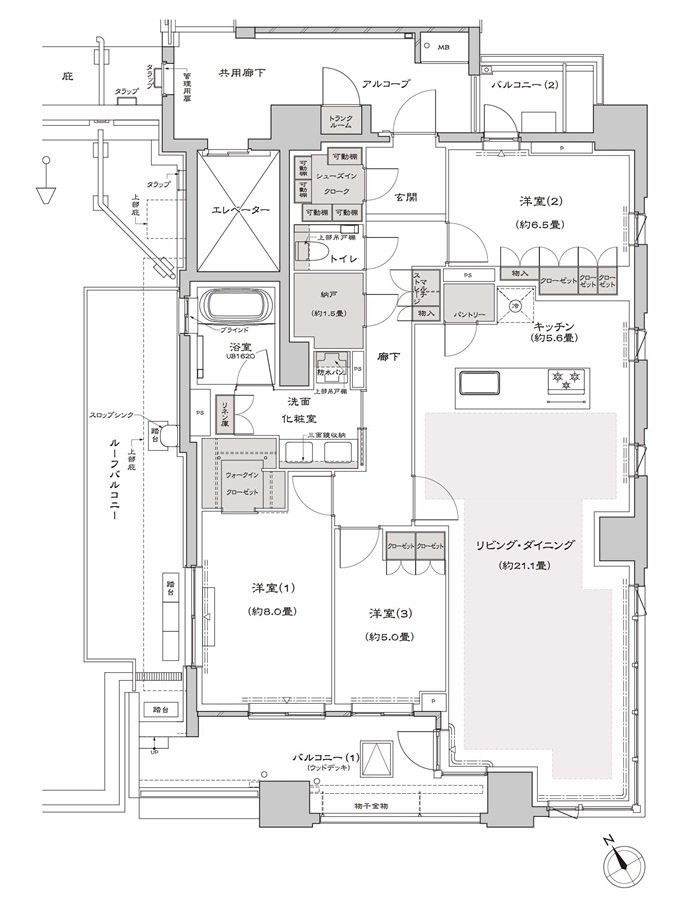
間取り |
3LDK+WIC+N+SIC+TR |
---|---|---|---|
専有面積 |
111.22 ㎡ |
バルコニー面積 |
- |
所在地 |
愛知県名古屋市瑞穂区彌富町字清水ケ岡38番1(地番) |
||
交通 |
名古屋市名城線「総合リハビリセンター」駅 徒歩3分 |
||
備考 |
専有トランクルーム面積:0.67㎡ |