
タイプ |
E-11r type |
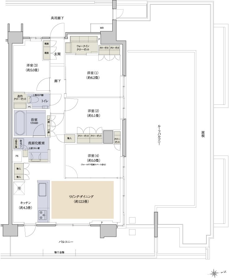
間取り |
4LDK+WIC |
---|---|---|---|
専有面積 |
85.85 ㎡ |
バルコニー面積 |
18.36 ㎡ |
所在地 |
東京都国立市富士見台1丁目28番地1,22(地番) |
||
交通 |
JR中央線「国立」駅 徒歩20分~23分 または「国立高校前」バス停 徒歩4~8分、立川バス「国立駅南口」行きバス約7分 ※所要時間は、時間帯及び道路状況により異なります。 |
||
備考 |
ルーフバルコニー面積:46.50㎡ |