
タイプ |
G type |
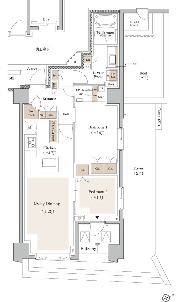
間取り |
2LDK+N |
---|---|---|---|
専有面積 |
62.63 ㎡ |
バルコニー面積 |
5.15 ㎡ |
所在地 |
東京都武蔵野市吉祥寺本町1丁目2194-17他8筆(地番) |
||
交通 |
JR中央線「吉祥寺」駅 徒歩5分~6分 ※JR中央線「吉祥寺」駅徒歩5分(東口・アトレ東館口トレ東館口:通行可能時間7:30~22:00)・徒歩6分(北口) |