

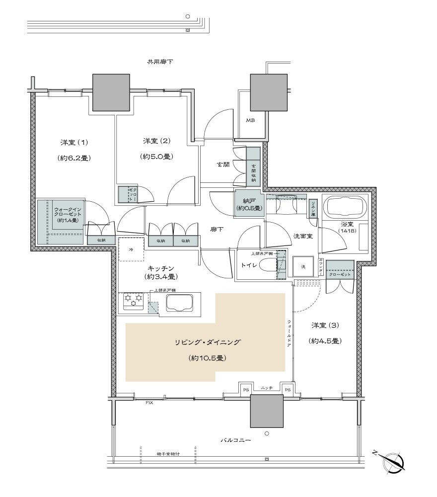
| タイプ |
70A type |
間取り |
3LDK+N+WIC |
|---|---|---|---|
| 専有面積 |
70.58 ㎡ |
バルコニー面積 |
14.90 ㎡ |
| 所在地 |
神奈川県海老名市めぐみ町512番13(地番) |
||
| 交通 |
小田急小田原線「海老名」駅 徒歩4分 |
||
| 備考 |
【第2期予告広告該当住戸】 |
||