

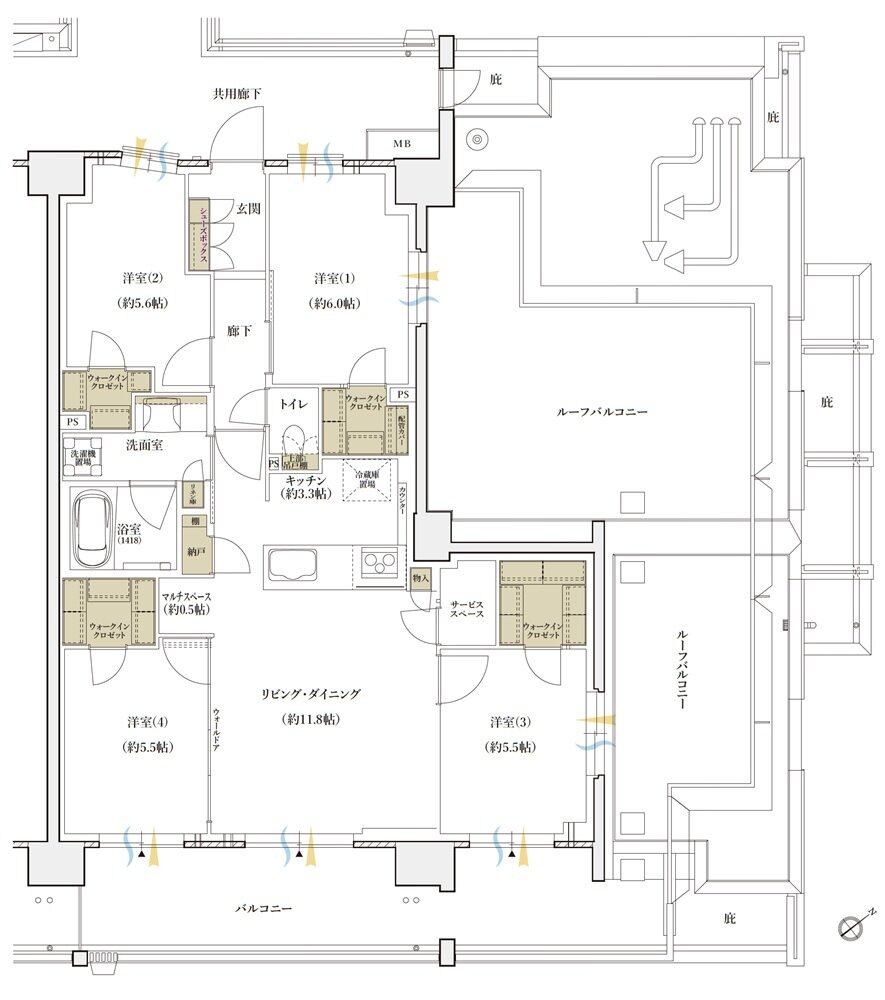
| タイプ |
B2r type【第2期12次】 |
間取り |
4LDK+4WIC+N+M+SS |
|---|---|---|---|
| 専有面積 |
86.54 ㎡ |
バルコニー面積 |
18.90 ㎡ |
| 所在地 |
神奈川県横浜市戸塚区前田町字阿らす100番2他(地番) |
||
| 交通 |
JR横須賀線「東戸塚」駅 徒歩13分 |
||
| 備考 |
ルーフバルコニー面積:37.87㎡ |
||