
タイプ |
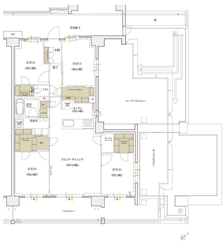
A3r type【第2期4次】 |
間取り |
4LDK+3WIC+FC+N+SS |
---|---|---|---|
専有面積 |
91.85 ㎡ |
バルコニー面積 |
21.18 ㎡ |
所在地 |
神奈川県横浜市戸塚区前田町字阿らす100番2他(地番) |
||
交通 |
JR横須賀線「東戸塚」駅 徒歩13分 |
||
備考 |
ルーフバルコニー面積:41.15㎡ |