
タイプ |
E11g type【第2期5次】 |
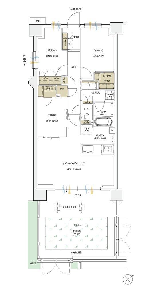
間取り |
3LDK+2WIC+N |
---|---|---|---|
専有面積 |
72 ㎡ |
バルコニー面積 |
- |
所在地 |
神奈川県横浜市戸塚区前田町字阿らす100番2他(地番) |
||
交通 |
JR横須賀線「東戸塚」駅 徒歩13分 |
||
備考 |
テラス面積:10.54㎡ |