

| タイプ |
A2 type【第2期6次】 |
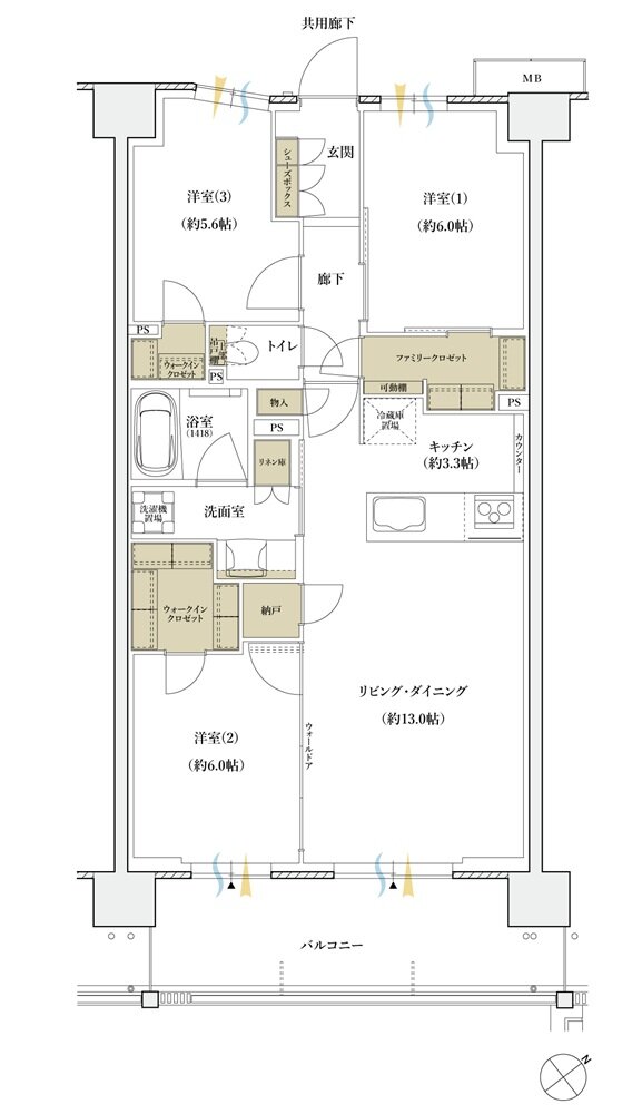
間取り |
3LDK+2WIC+FC+N |
|---|---|---|---|
| 専有面積 |
76.82 ㎡ |
バルコニー面積 |
- |
| 所在地 |
神奈川県横浜市戸塚区前田町字阿らす100番2他(地番) |
||
| 交通 |
JR横須賀線「東戸塚」駅 徒歩13分 |
||
| 備考 |
バルコニー面積:12.06㎡(2階)、12.16㎡(3〜5階) |
||