
タイプ |
A1 type【第2期5次】 |
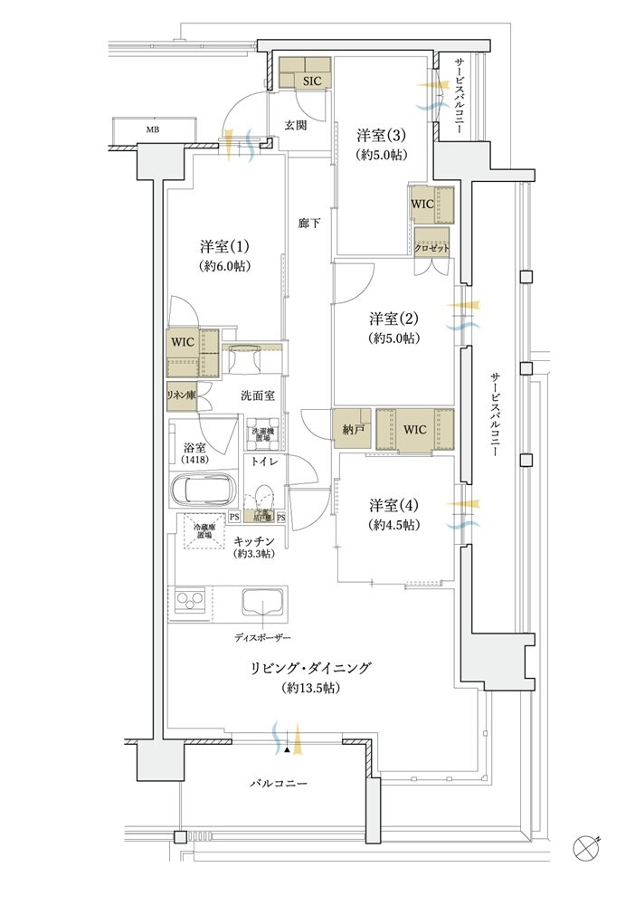
間取り |
4LDK+3WIC+N+SIC |
---|---|---|---|
専有面積 |
83.58 ㎡ |
バルコニー面積 |
7.28 ㎡ |
所在地 |
神奈川県横浜市戸塚区前田町字阿らす100番2他(地番) |
||
交通 |
JR横須賀線「東戸塚」駅 徒歩13分 |
||
備考 |
サービスバルコニー面積:13.54㎡ |