

| タイプ |
C type menu1(2~20階) |
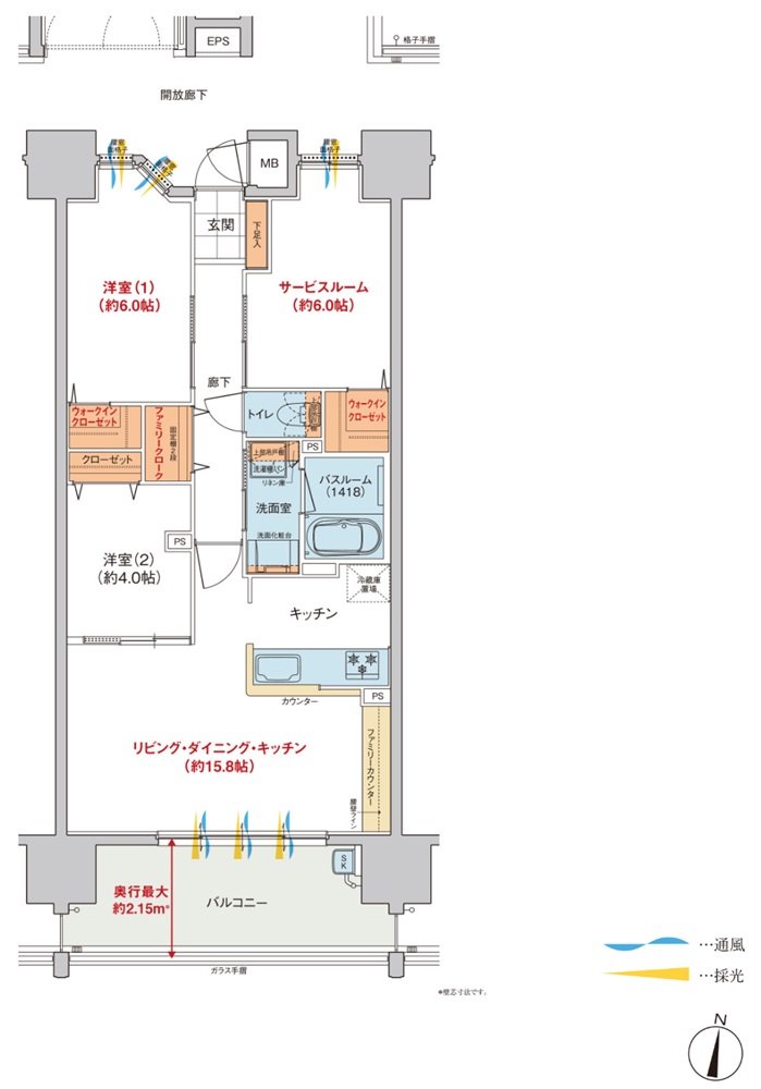
間取り |
2LDK+S+WIC+FC |
|---|---|---|---|
| 専有面積 |
70.39 ㎡ |
バルコニー面積 |
12.79 ㎡ |
| 所在地 |
広島県広島市佐伯区楽々園6丁目1061番(地番) |
||
| 交通 |
広島電鉄宮島線「楽々園」駅 徒歩12分 |
||
| 備考 |
MB面積:0.70㎡ |
||