
タイプ |
A・A1タイプ |
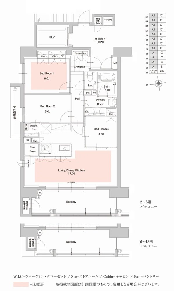
間取り |
3LDK+WIC+Sto+Pan |
---|---|---|---|
専有面積 |
74.83 ㎡ |
バルコニー面積 |
13.00 ㎡ |
所在地 |
福岡県福岡市早良区城西3丁目335 |
||
交通 |
地下鉄空港線「西新」駅 徒歩6分(480m) |
||
備考 |
室外機置場面積:3.08㎡ |