
タイプ |
Cタイプ(メニュープラン) |
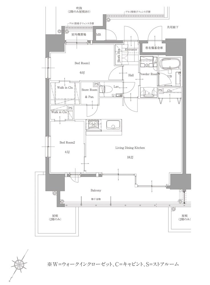
間取り |
2LDK+2WIC+Cabin |
---|---|---|---|
専有面積 |
66.82 ㎡ |
バルコニー面積 |
11.47 ㎡ |
所在地 |
熊本県熊本市中央区桜町2番3 (地番) |
||
交通 |
熊本市電上熊本線「西辛島町」駅 徒歩4分(260m) |
||
備考 |
室外機置場面積:1.61㎡ |