

| タイプ |
Eタイプ |
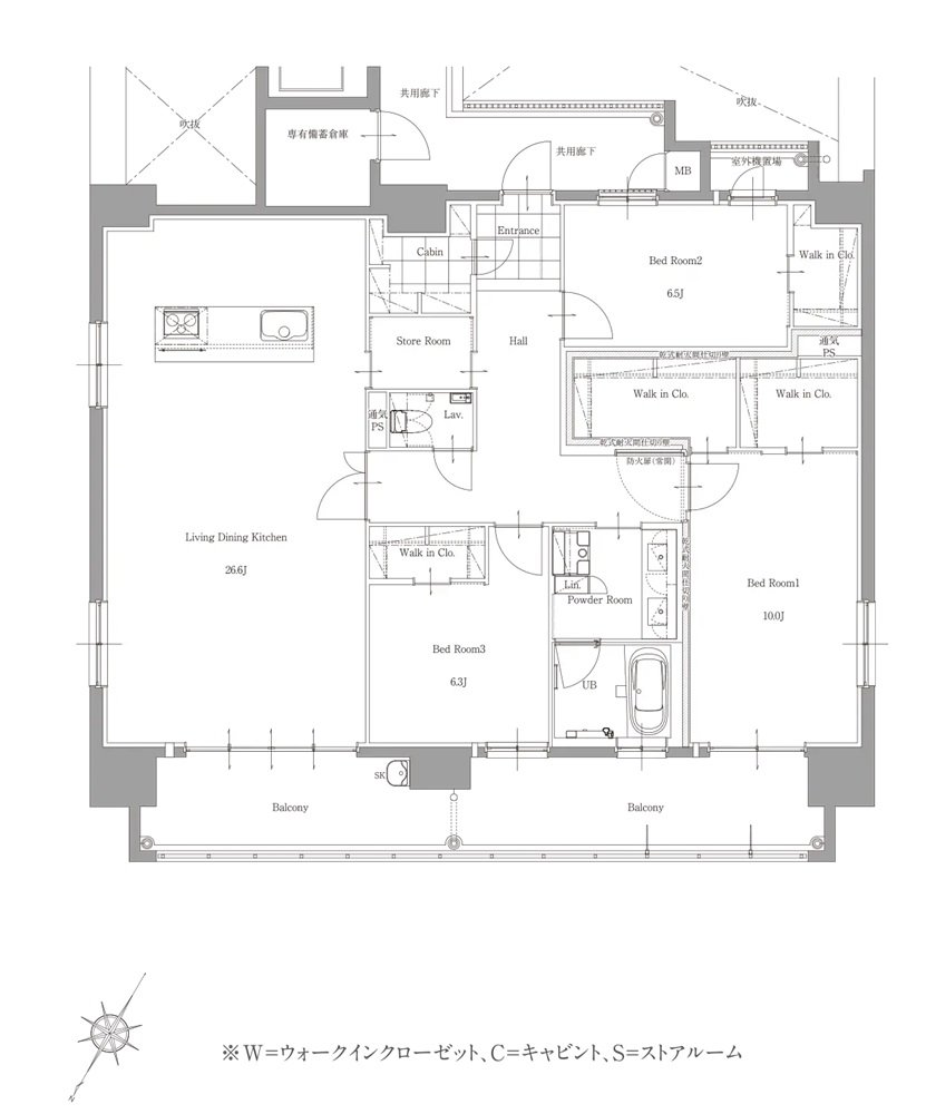
間取り |
3LDK+4WIC+Sto+Cabin |
|---|---|---|---|
| 専有面積 |
128.57 ㎡ |
バルコニー面積 |
21.51 ㎡ |
| 所在地 |
熊本県熊本市中央区桜町2番3 (地番) |
||
| 交通 |
熊本市電上熊本線「西辛島町」駅 徒歩4分(260m) |
||
| 備考 |
室外機置場面積:1.61㎡ |
||