

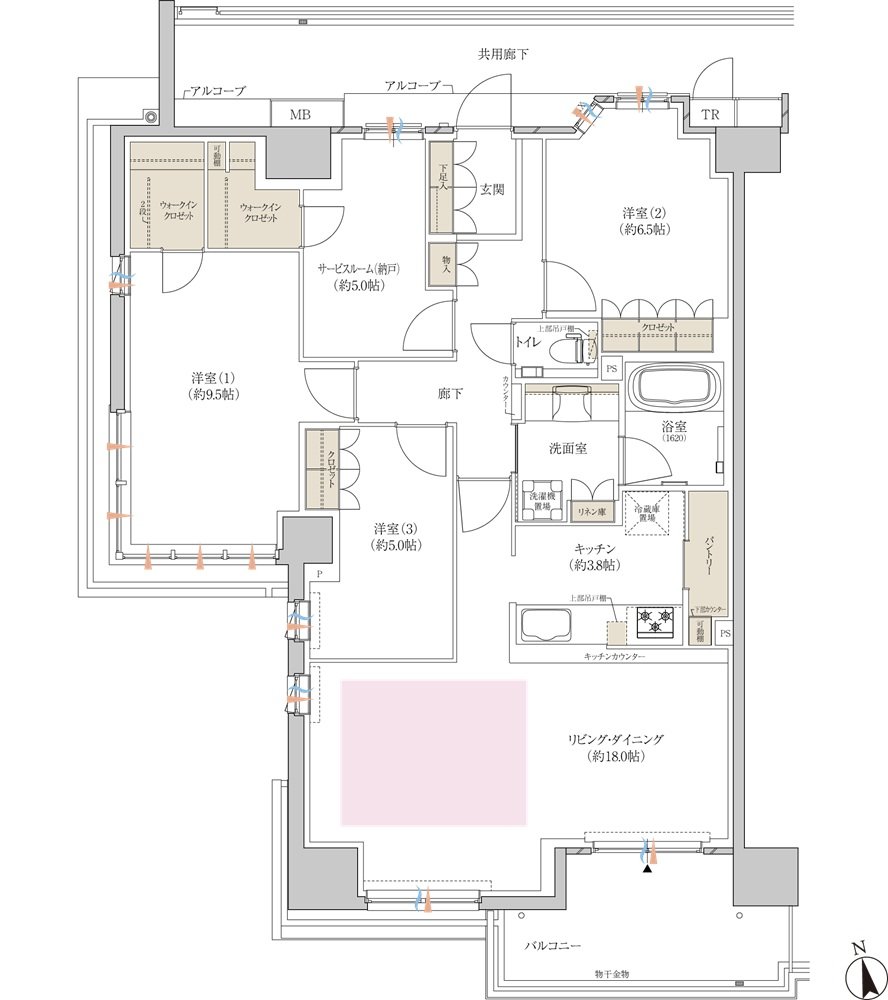
| タイプ |
カルムコート CK type |
間取り |
3LDK+S+2WIC |
|---|---|---|---|
| 専有面積 |
108.21 ㎡ |
バルコニー面積 |
9.57 ㎡ |
| 所在地 |
兵庫県神戸市垂水区舞子台2丁目1693番(地番) |
||
| 交通 |
JR山陽本線「舞子」駅 徒歩3分(約190m)※「Tio舞子」中央通路利用の場合(JR線の始発から終電まで利用可能)/「Tio舞子」中央通路利用をしない場合 JR「舞子」駅 徒歩4分(約320m) |
||
| 備考 |
トランクルーム面積:0.40㎡ |
||