
タイプ |
Iタイプ |
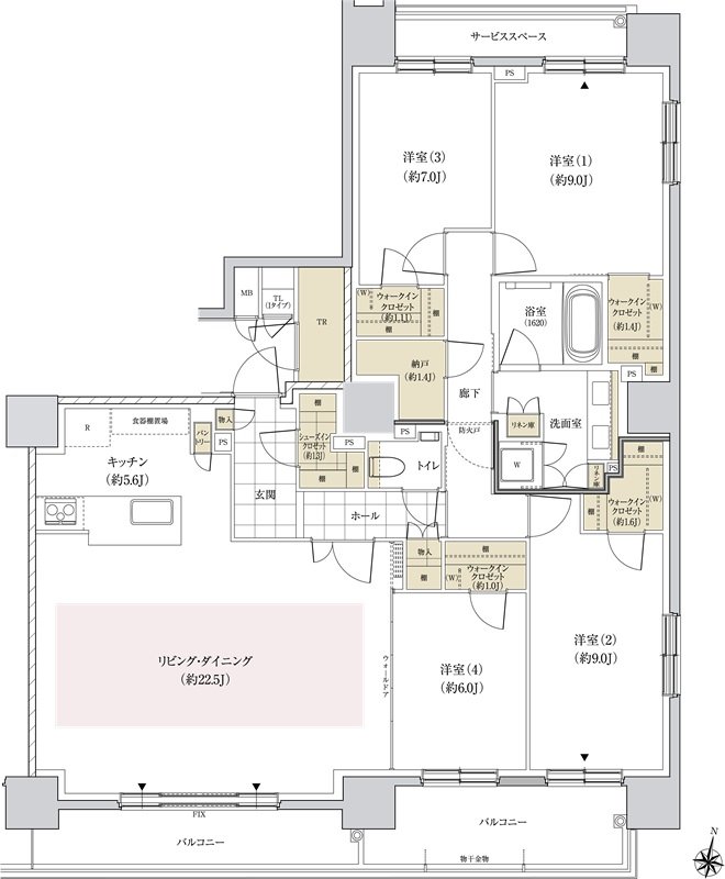
間取り |
4LDK+4WIC+SIC+N |
---|---|---|---|
専有面積 |
137.85 ㎡ |
バルコニー面積 |
18.03 ㎡ |
所在地 |
北海道札幌市中央区北一条西22丁目46番194(地番) |
||
交通 |
札幌市東西線「円山公園」駅 徒歩7分 |
||
備考 |
トランクルーム面積:2.39㎡ |