
タイプ |
BE type |
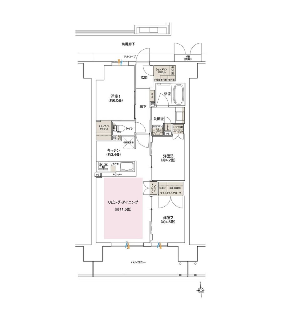
間取り |
3LDK+SIC |
---|---|---|---|
専有面積 |
68.42 ㎡ |
バルコニー面積 |
11.90 ㎡ |
所在地 |
大阪府大阪市平野区長吉長原東2丁目442番17(地番) |
||
交通 |
地下鉄谷町線「長原」駅 徒歩2分 |
||
備考 |
アルコープ面積: 3.00 ㎡ |