
タイプ |
Lm type |
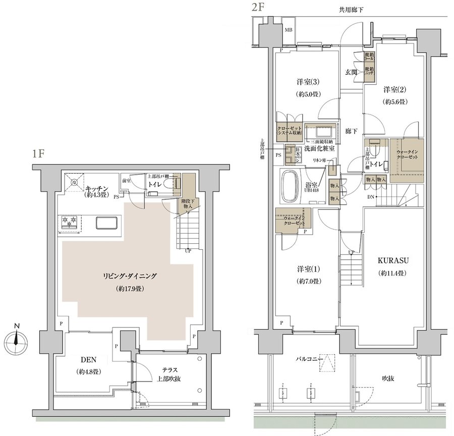
間取り |
3LDK+DEN+2WIC+KURASU |
---|---|---|---|
専有面積 |
106.04 ㎡ |
バルコニー面積 |
10.17 ㎡ |
所在地 |
東京都世田谷区中町3丁目115番3(地番) |
||
交通 |
東急大井町線「等々力」駅 徒歩9分 |
||
備考 |
テラス面積:7.20㎡ |