

| タイプ |
Cタイプ(2期1次以降) |
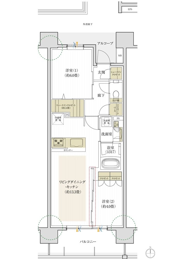
間取り |
2LDK+WIC+SIC+N |
|---|---|---|---|
| 専有面積 |
55.46 ㎡ |
バルコニー面積 |
- |
| 所在地 |
愛知県刈谷市神田町1丁目8-3(地番) |
||
| 交通 |
東海道本線「刈谷」駅 徒歩5分 |
||
| 備考 |
バルコニー面積 :9.8 ㎡ (1階) |
||