

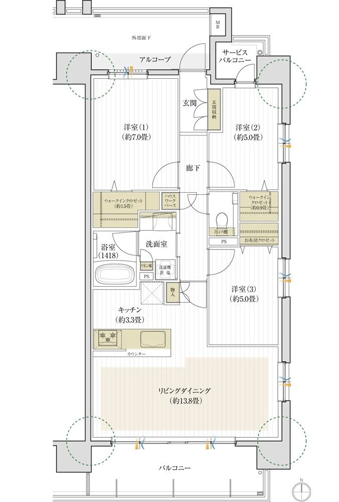
| タイプ |
Hタイプ(2期2次) |
間取り |
3LDK+2WIC+FC |
|---|---|---|---|
| 専有面積 |
76.41 ㎡ |
バルコニー面積 |
10.4 ㎡ |
| 所在地 |
愛知県刈谷市神田町1丁目8-3(地番) |
||
| 交通 |
東海道本線「刈谷」駅 徒歩5分 |
||
| 備考 |
サービスバルコニー面積:2.4㎡ |
||