
タイプ |
Hタイプ(2期1次以降) |
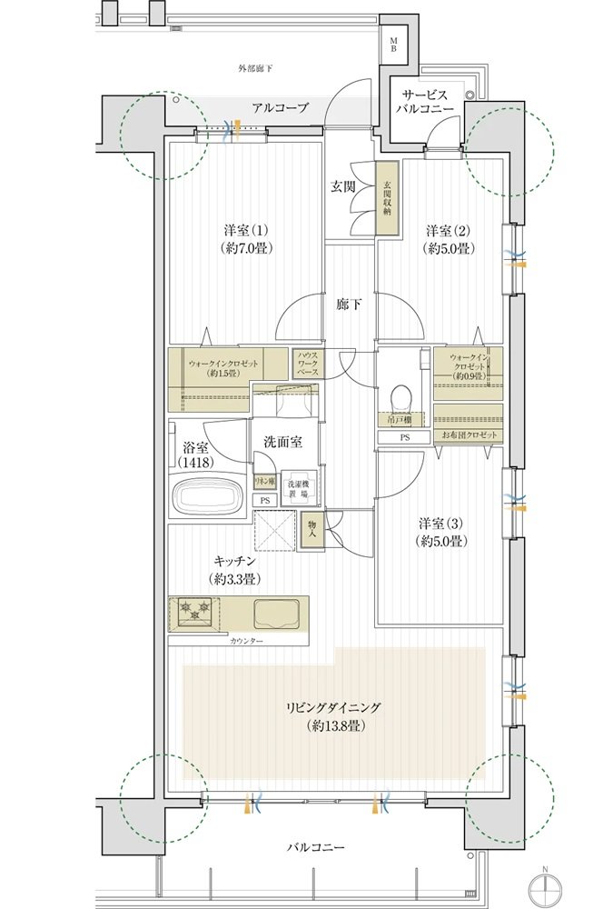
間取り |
3LDK+2WIC+FC |
---|---|---|---|
専有面積 |
76.41 ㎡ |
バルコニー面積 |
10.4 ㎡ |
所在地 |
愛知県刈谷市神田町1丁目8-3(地番) |
||
交通 |
東海道本線「刈谷」駅 徒歩5分 |
||
備考 |
サービスバルコニー面積:2.4㎡ |