
タイプ |
Bタイプ(先着順) |
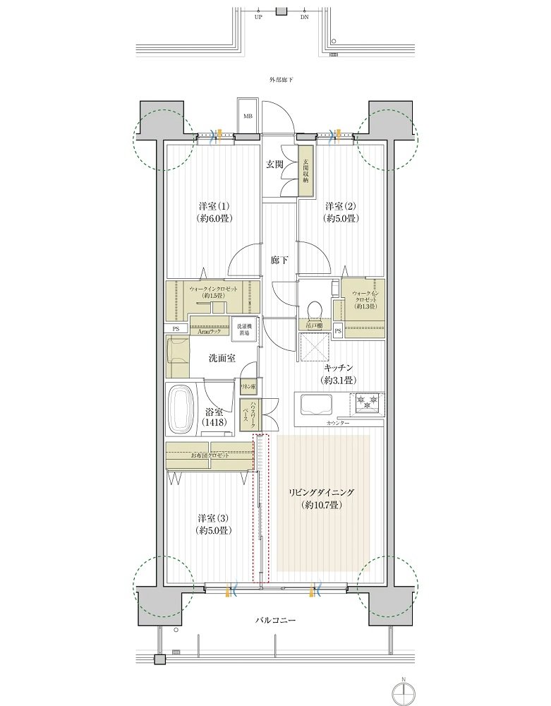
間取り |
3LDK+2WIC+FC |
---|---|---|---|
専有面積 |
70.5 ㎡ |
バルコニー面積 |
10.8 ㎡ |
所在地 |
愛知県刈谷市神田町1丁目8-3(地番) |
||
交通 |
東海道本線「刈谷」駅 徒歩5分 |
||
備考 |
バルコニー面積:12.00㎡(1F) |