
タイプ |
Lタイプ |
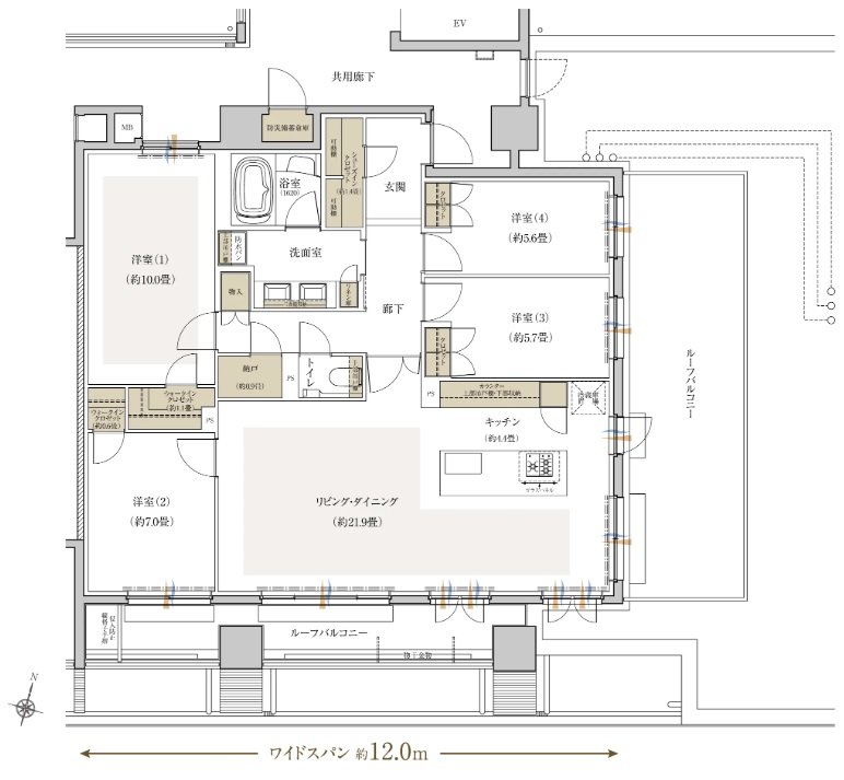
間取り |
4LDK+2WIC+N+SIC |
---|---|---|---|
専有面積 |
122.00 ㎡ |
バルコニー面積 |
- |
所在地 |
福岡県福岡市早良区西新2丁目166-1(地番) |
||
交通 |
地下鉄空港線「西新」駅 徒歩7分 |
||
備考 |
ルーフバルコニー面積:41.68㎡ |