

| タイプ |
Kタイプ |
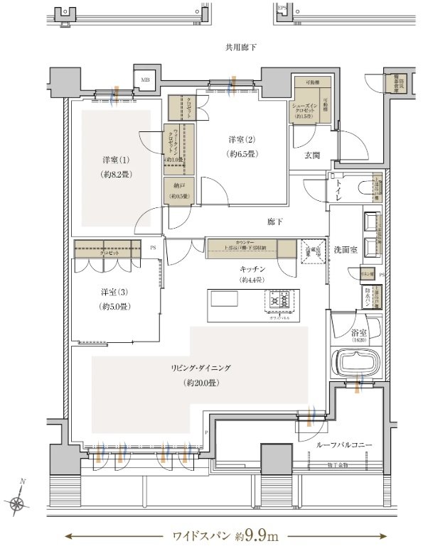
間取り |
3LDK+WIC+N+SIC |
|---|---|---|---|
| 専有面積 |
101.68 ㎡ |
バルコニー面積 |
10.85 ㎡ |
| 所在地 |
福岡県福岡市早良区西新2丁目166-1(地番) |
||
| 交通 |
地下鉄空港線「西新」駅 徒歩7分 |
||
| 備考 |
ルーフバルコニー面積:10.85㎡ |
||