
タイプ |
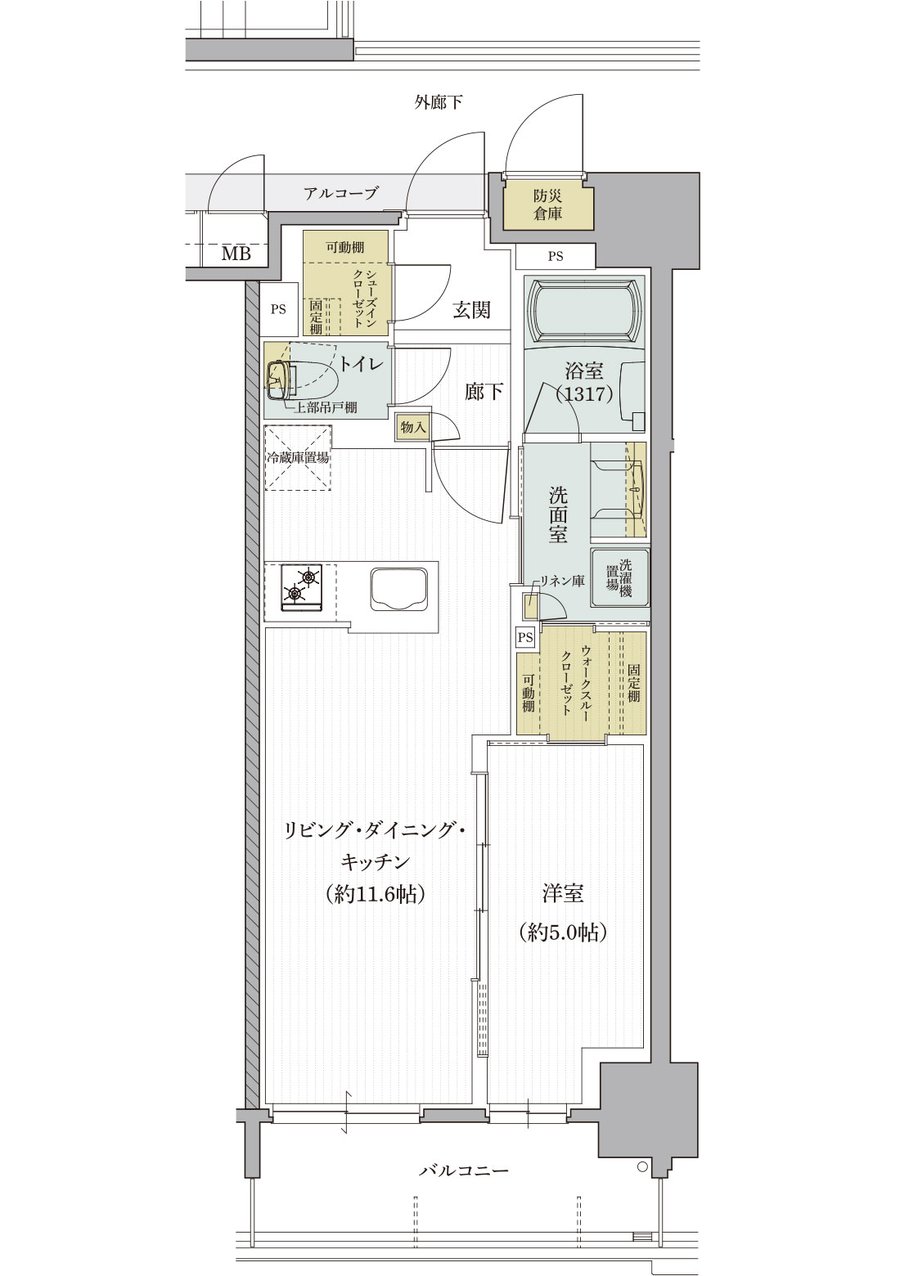
Eタイプ |
間取り |
1LDK |
---|---|---|---|
専有面積 |
43.01 ㎡ |
バルコニー面積 |
6.6 ㎡ |
所在地 |
愛媛県松山市道後北代1271番1(地番) |
||
交通 |
伊予鉄道環状線「上一万」駅 徒歩9分 |
||
備考 |
アルコーブ面積:1.33㎡ |