

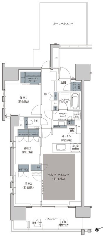
| タイプ |
B2 type |
間取り |
3LDK+WIC+SIC |
|---|---|---|---|
| 専有面積 |
71.43 ㎡ |
バルコニー面積 |
9.65 ㎡ |
| 所在地 |
東京都立川市錦町1丁目370(地番) |
||
| 交通 |
JR中央線「立川」駅 徒歩7分 |
||
| 備考 |
ルーフバルコニー面積:17.87㎡ |
||