

| タイプ |
Rrタイプ |
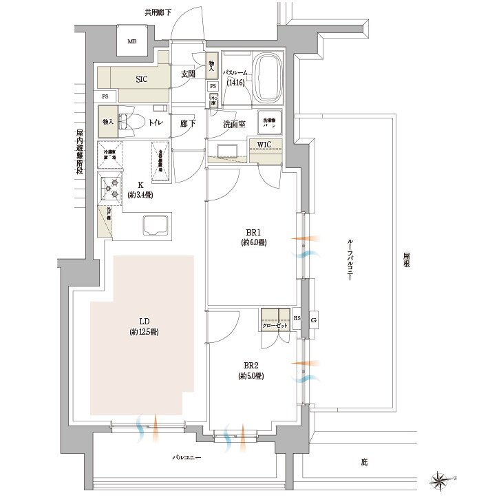
間取り |
2LDK+WIC+SIC |
|---|---|---|---|
| 専有面積 |
58.76 ㎡ |
バルコニー面積 |
7.28 ㎡ |
| 所在地 |
東京都杉並区西荻北1丁目263番1 他(地番) |
||
| 交通 |
JR中央線「西荻窪」駅 徒歩10分 |
||
| 備考 |
ルーフバルコニー面積:16.65㎡ |
||