

| タイプ |
Srタイプ |
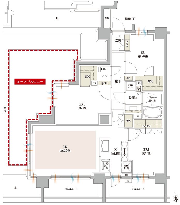
間取り |
2LDK+SR+2WIC |
|---|---|---|---|
| 専有面積 |
75.44 ㎡ |
バルコニー面積 |
- |
| 所在地 |
東京都杉並区西荻北1丁目263番1 他(地番) |
||
| 交通 |
JR中央線「西荻窪」駅 徒歩10分 |
||
| 備考 |
バルコニー1面積:6.45㎡ |
||