

| タイプ |
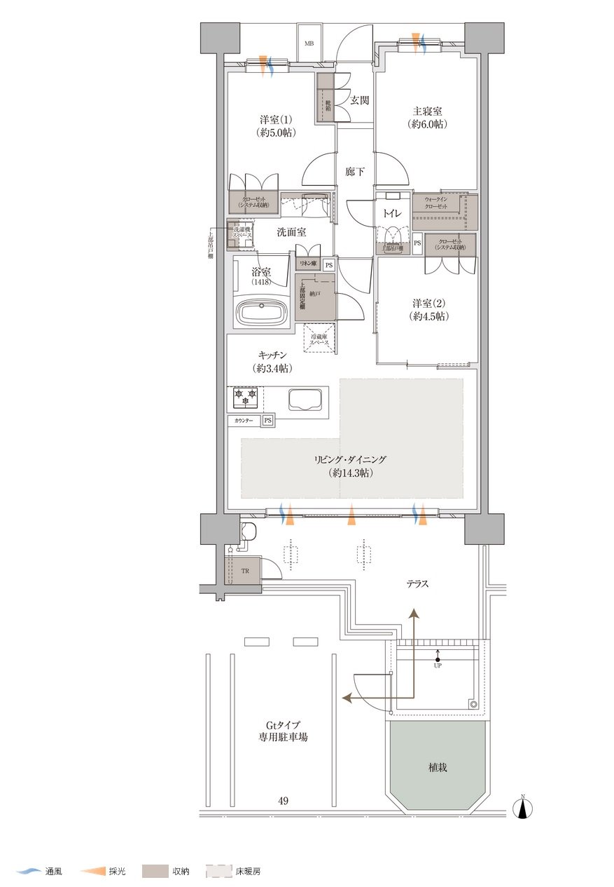
Gtタイプ |
間取り |
3LDK+WIC+N+TR |
|---|---|---|---|
| 専有面積 |
74.27 ㎡ |
バルコニー面積 |
- |
| 所在地 |
愛知県名古屋市西区江向町6丁目54(地番) |
||
| 交通 |
名古屋市鶴舞線「庄内通」駅 徒歩5分(1番出入口/約400m) |
||
| 備考 |
テラス面積/19.24㎡ |
||