
タイプ |
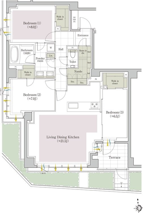
G2タイプ |
間取り |
3LDK+3WIC+SIC+N |
---|---|---|---|
専有面積 |
104.66 ㎡ |
バルコニー面積 |
- |
所在地 |
東京都世田谷区新町3丁目309番1、他(地番) |
||
交通 |
東急田園都市線「桜新町」駅 徒歩5分 |
||
備考 |
テラス面積:6.05㎡ |