

| タイプ |
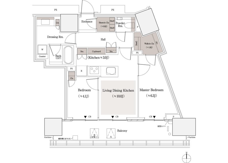
58-Gsタイプ(メニュー) |
間取り |
2LDK+WIC+SIC<4〜29F> |
|---|---|---|---|
| 専有面積 |
58.64 ㎡ |
バルコニー面積 |
- |
| 所在地 |
東京都品川区東品川2丁目1-2他(地番) |
||
| 交通 |
りんかい線「天王洲アイル」駅 徒歩4分 |
||
| 備考 |
バルコニー面積:15.03㎡~16.57㎡ |
||