

| タイプ |
47-Ieタイプ |
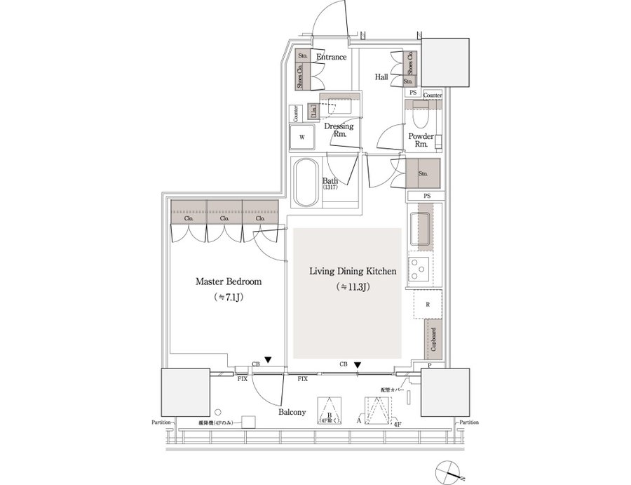
間取り |
1LDK<4〜29F> |
|---|---|---|---|
| 専有面積 |
47.88 ㎡ |
バルコニー面積 |
- |
| 所在地 |
東京都品川区東品川2丁目1-2他(地番) |
||
| 交通 |
りんかい線「天王洲アイル」駅 徒歩4分 |
||
| 備考 |
バルコニー面積:11.43㎡~12.61㎡ |
||