

| タイプ |
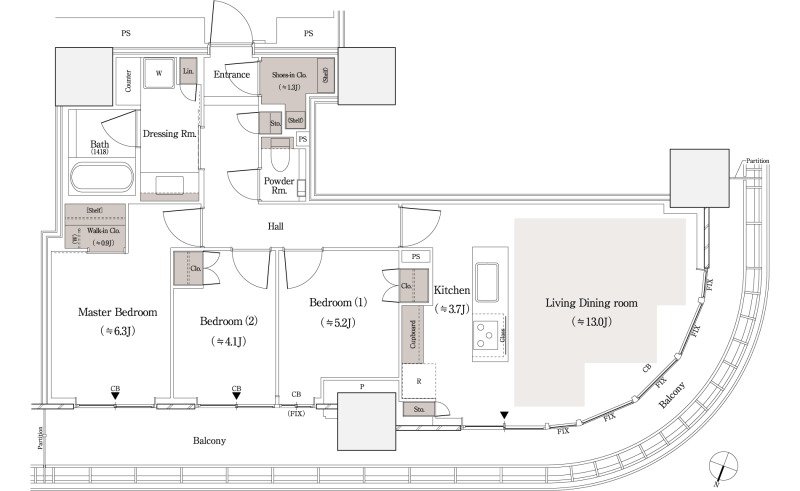
78-Cnwタイプ |
間取り |
3LDK+WIC+SIC |
|---|---|---|---|
| 専有面積 |
78.09 ㎡ |
バルコニー面積 |
25.46 ㎡ |
| 所在地 |
東京都品川区東品川2丁目1-2他(地番) |
||
| 交通 |
りんかい線「天王洲アイル」駅 徒歩4分 |
||
| 備考 |
<4〜29F> |
||