
タイプ |
Ag TYPE |
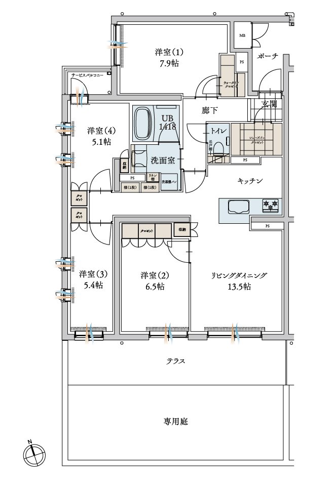
間取り |
4LDK+WIC+SIC |
---|---|---|---|
専有面積 |
93.33 ㎡ |
バルコニー面積 |
- |
所在地 |
静岡県静岡市駿河区池田字横ママ2321番31(地番) |
||
交通 |
バス利用:バス停「草薙陸上競技場南」 停歩7分(静鉄バス) |
||
備考 |
テラス面積/14.79㎡ |