

| タイプ |
A TYPE |
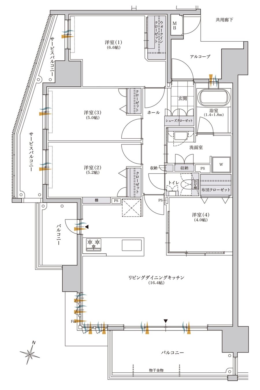
間取り |
4LDK+WIC+FC |
|---|---|---|---|
| 専有面積 |
82.1 ㎡ |
バルコニー面積 |
14.83 ㎡ |
| 所在地 |
長崎県長崎市若葉町7-1 |
||
| 交通 |
長崎電軌本線「長崎大学」駅 徒歩2分 |
||
| 備考 |
サービスバルコニー面積:7.98m² |
||