
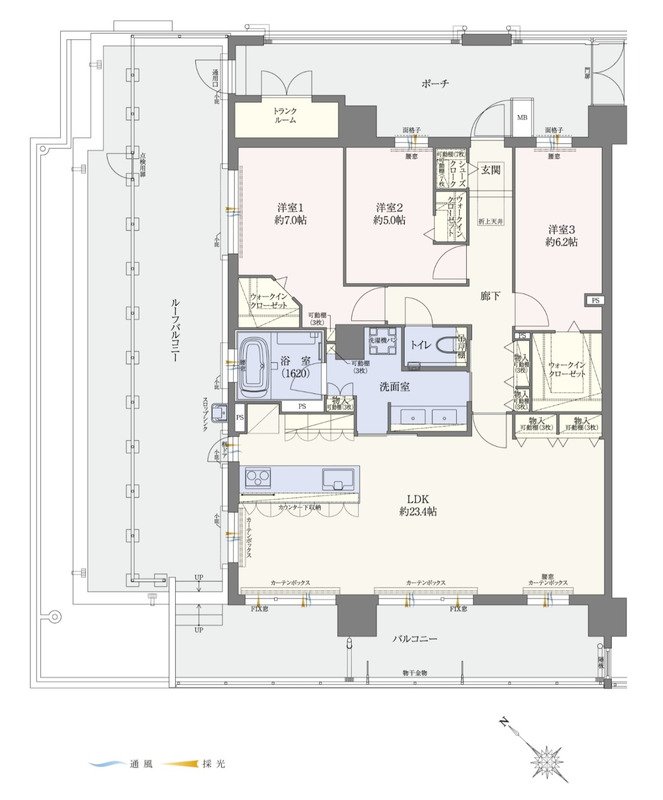
タイプ |
Kタイプ MenuPlan2 |
間取り |
3LDK+3WIC+SC |
---|---|---|---|
専有面積 |
101.62 ㎡ |
バルコニー面積 |
20.85 ㎡ |
所在地 |
福岡県福岡市東区名島3丁目2071番1、2072番1 |
||
交通 |
西鉄貝塚線「名島」駅 徒歩2分(約160m) |
||
備考 |
ルーフバルコニー面積:31.58㎡ |