
タイプ |
Crタイプ |
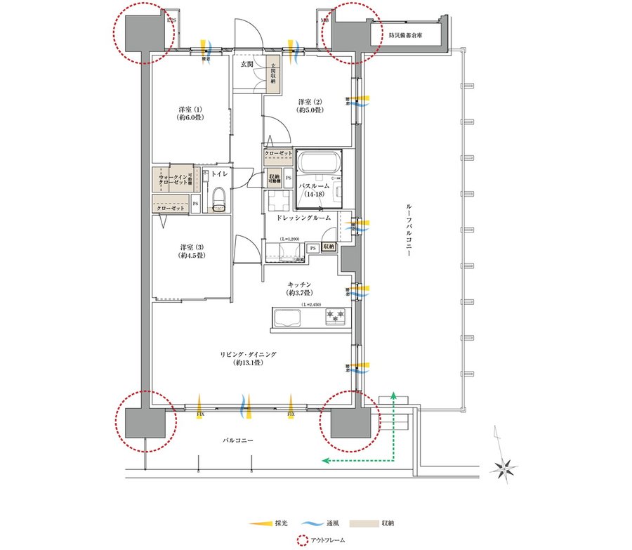
間取り |
3LDK+WIC |
---|---|---|---|
専有面積 |
73.92 ㎡ |
バルコニー面積 |
16.80 ㎡ |
所在地 |
香川県高松市伏石町2089-4(地番) |
||
交通 |
高松琴平電鉄琴平線「伏石」駅 徒歩11分(約820m) |
||
備考 |
ルーフバルコニー面積:36.96㎡ |