
タイプ |
WE type |
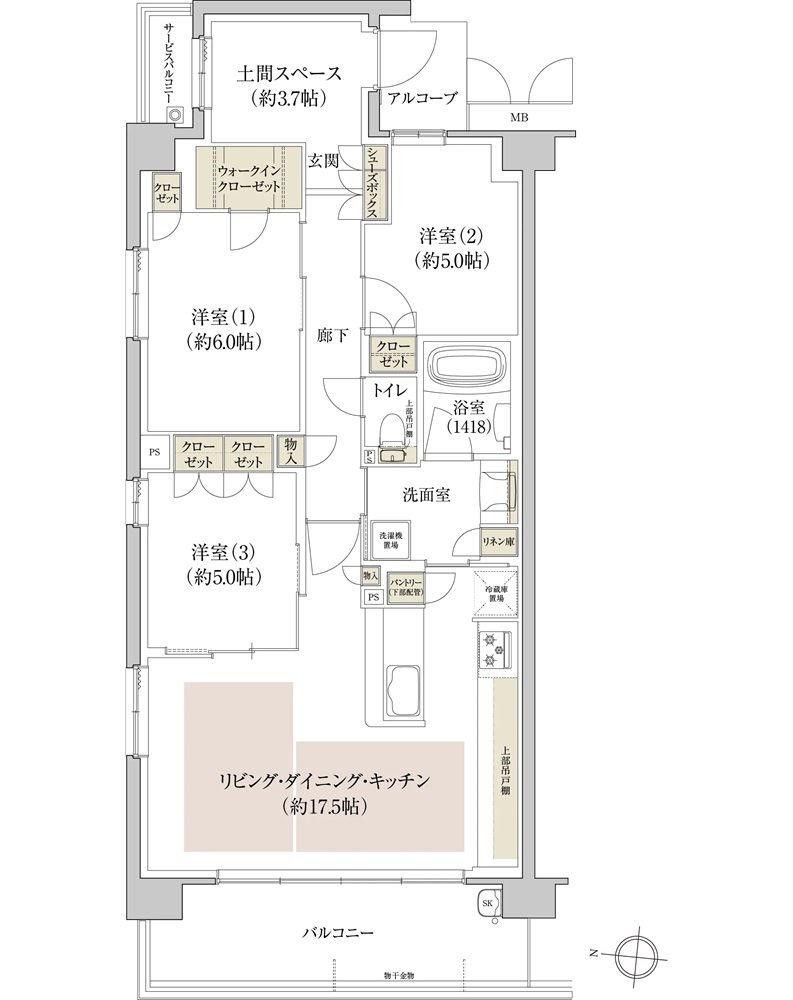
間取り |
3LDK+WIC+土間 |
---|---|---|---|
専有面積 |
81.80 ㎡ |
バルコニー面積 |
11.14 ㎡ |
所在地 |
京都府京都市西京区桂御所町18番の一部 |
||
交通 |
阪急京都線「桂」駅 徒歩11分 |
||
備考 |
サービスバルコニー面積:1.80㎡ |