
タイプ |
SM type(基本プラン) |
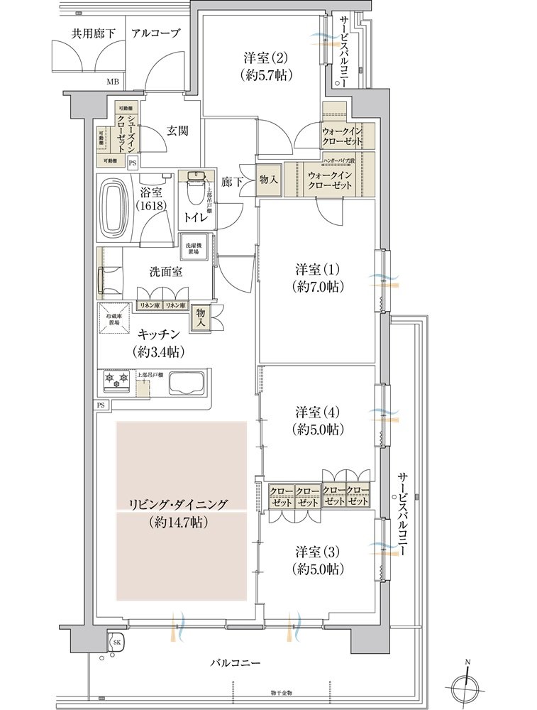
間取り |
4LDK+WIC |
---|---|---|---|
専有面積 |
90.79 ㎡ |
バルコニー面積 |
13.95 ㎡ |
所在地 |
京都府京都市西京区桂御所町18番の一部 |
||
交通 |
阪急京都線「桂」駅 徒歩11分 |
||
備考 |
サービスバルコニー面積:8.11㎡ |