
タイプ |
S1-76L1/S1-76L1gタイプ |
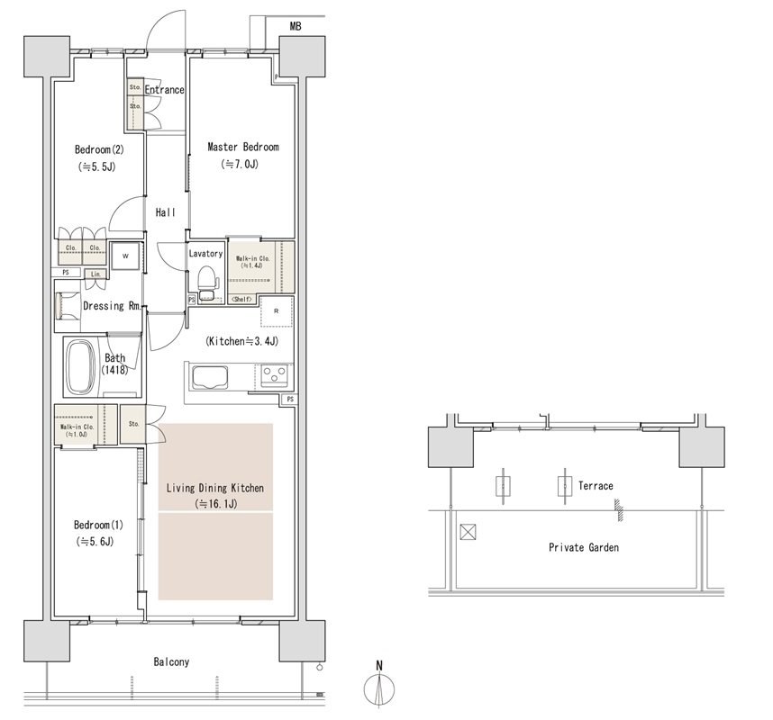
間取り |
3LDK+2WIC |
---|---|---|---|
専有面積 |
76.63 ㎡ |
バルコニー面積 |
10.53 ㎡ |
所在地 |
愛知県名古屋市港区金川町101番8(地番) |
||
交通 |
名古屋市名港線「東海通」駅 徒歩7分 |
||
備考 |
テラス面積:10.53㎡ |