
タイプ |
S1-95G/S1-95Ggタイプ |
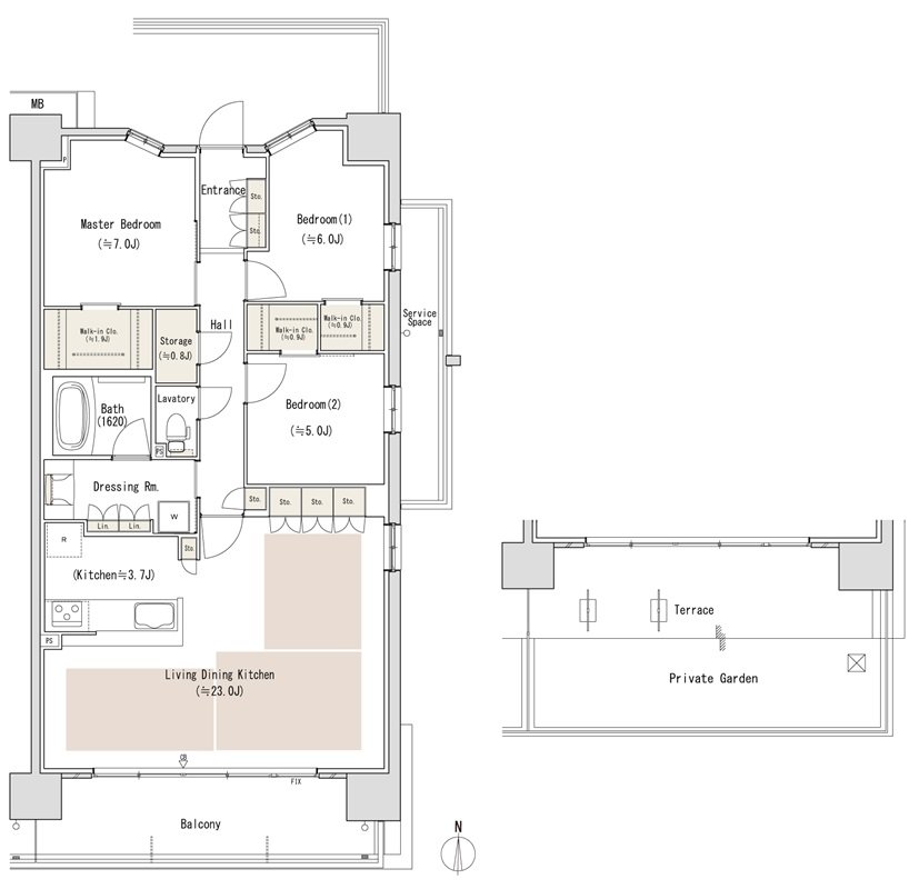
間取り |
3LDK+3WIC+S |
---|---|---|---|
専有面積 |
95.03 ㎡ |
バルコニー面積 |
12.60 ㎡ |
所在地 |
愛知県名古屋市港区金川町101番8(地番) |
||
交通 |
名古屋市名港線「東海通」駅 徒歩7分 |
||
備考 |
サービススペース面積:6.76㎡ |