

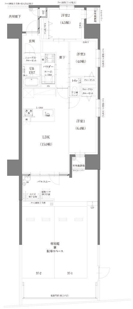
| タイプ |
D1 type |
間取り |
3LDK+SIC+WIC |
|---|---|---|---|
| 専有面積 |
69.38 ㎡ |
バルコニー面積 |
7.63 ㎡ |
| 所在地 |
福岡県福岡市博多区板付5丁目11番4 |
||
| 交通 |
JR鹿児島本線「笹原」駅 徒歩20分 |
||
| 備考 |
室外機置場面積:3.65㎡ |
||