

| タイプ |
J type |
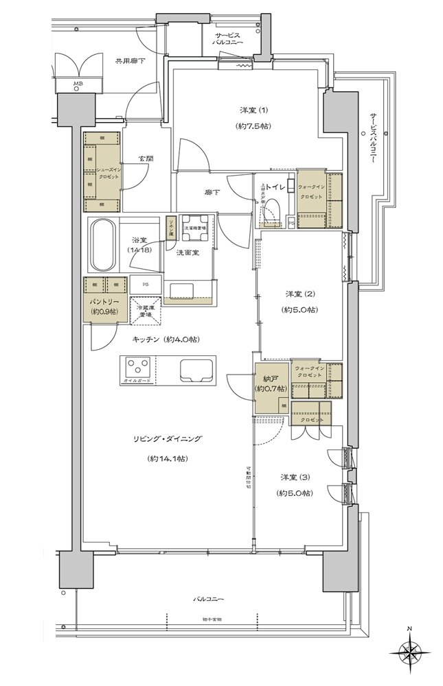
間取り |
3LDK+2WIC+SIC+N+パントリー |
|---|---|---|---|
| 専有面積 |
81.28 ㎡ |
バルコニー面積 |
- |
| 所在地 |
東京都杉並区高井戸西2丁目1125番2(地番) |
||
| 交通 |
京王井の頭線「高井戸」駅 徒歩3分(約180m)※計画地東側を通る場合のルートです |
||
| 備考 |
バルコニー面積:13.77㎡ <1階>、13.60㎡ <2~6階> |
||