

| タイプ |
F TYPE |
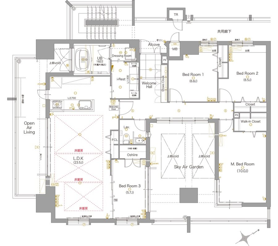
間取り |
4LDK |
|---|---|---|---|
| 専有面積 |
121.72 ㎡ |
バルコニー面積 |
50.49 ㎡ |
| 所在地 |
福岡県北九州市小倉北区若富士町27,31-1,28-1(地名地番) |
||
| 交通 |
JR日豊本線「城野」駅 徒歩3分(約220m) |
||
| 備考 |
アルコーブ面積:1.41㎡ |
||