

| タイプ |
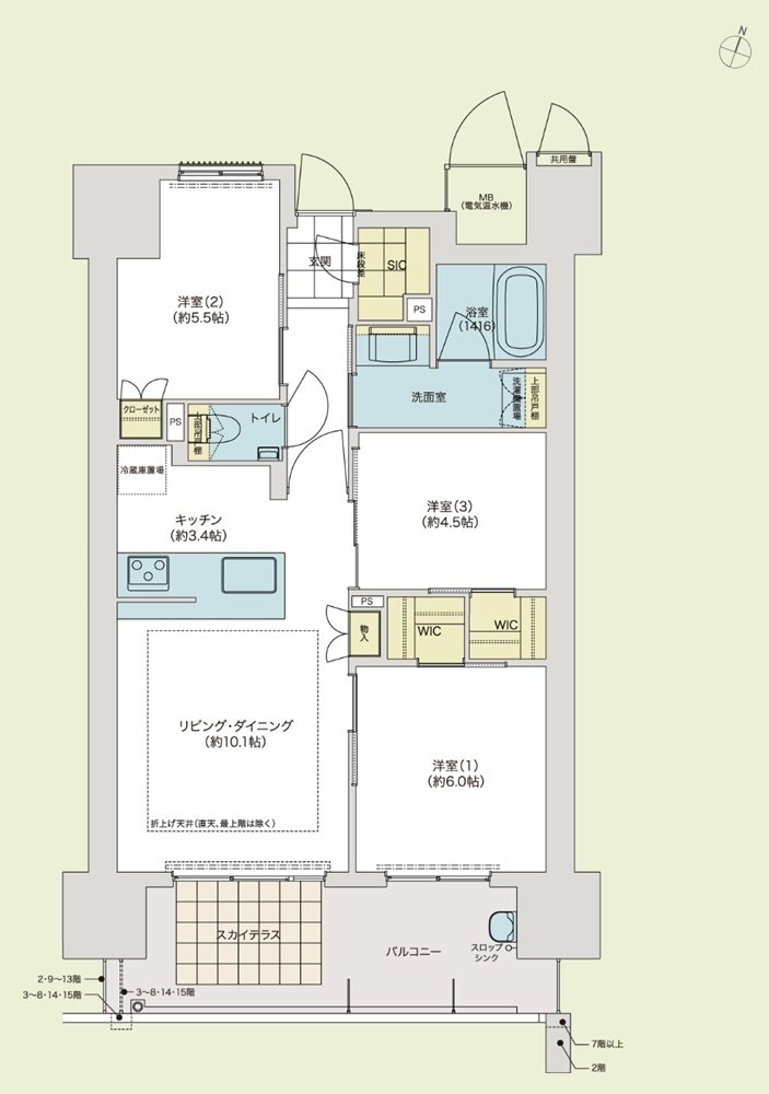
S65-E TYPE |
間取り |
3LDK+2WIC+SIC |
|---|---|---|---|
| 専有面積 |
65.73 ㎡ |
バルコニー面積 |
- |
| 価格 |
3640万円 |
||
| 所在地 |
徳島県徳島市中吉野町3丁目7-1 |
||
| 交通 |
バス利用:バス停「中吉野町」 停歩2分(徳島バス) |
||
| 備考 |
バルコニー面積:12.80㎡・13.30㎡ |
||